loader

Holckenhavn Slot

Grundplan

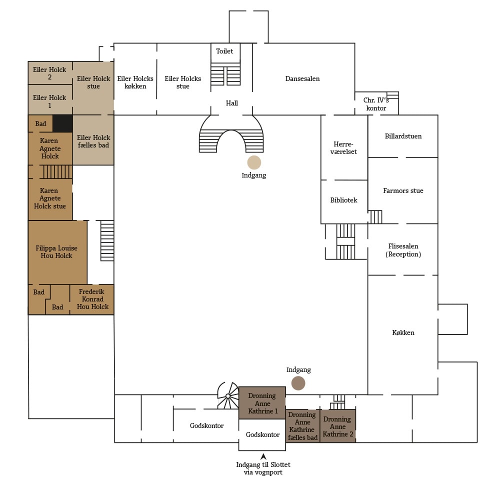
Stueplan

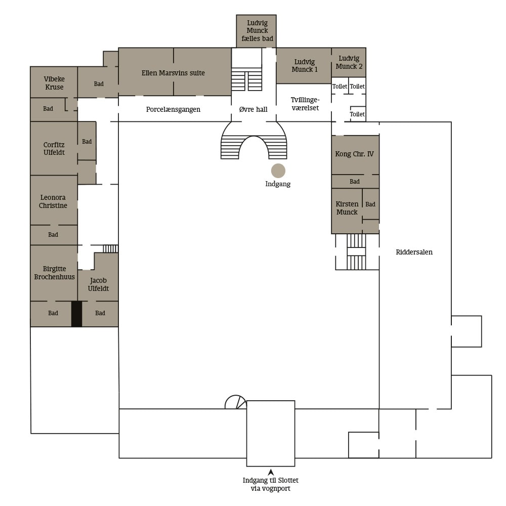
1. sal